
CRV--V錐流量計適合安裝在上、下游直管段不足的場合。具有精度高、重復性好,可測量范圍寬,安裝簡單方便、維護費用低等一系列優點,流體的條件可從高低溫到臨界狀態,工作溫度高達 700℃,壓力可到 40MPa,雷諾數為 500 萬,雷諾數為 8000 甚至低。所產生的滿刻度差壓信號,從小于0.1KPa 到幾十 KPa。
一、主要特性
CRV--V錐流量計適合安裝在上、下游直管段不足的場合。具有精度高、重復性好,可測量范圍寬,安裝簡單方便、維護費用低等一系列優點,流體的條件可從高低溫到臨界狀態,工作溫度高達 700℃,壓力可到 40MPa,雷諾數為 500 萬,雷諾數為 8000 甚至低。所產生的滿刻度差壓信號,從小于0.1KPa 到幾十 KPa。可在寬的流量范圍內測量氣體、液體和蒸汽的流量而不受流體物理性質的影響可在系統的每個地方安裝——即使安裝空間比較狹小也可正確測量可就地或異地顯示瞬時量和累積量精度可達測量值的±0.5%測量范圍寬,測量量程比可達10:1直管段要求低,多數情況前3D,后1D能夠滿足測量要求無活動部件,無磨損,因而不需要維修或換,后期維護量小可直接測量介質的溫度和壓力,直接算出蒸汽、氣體的質量流量和標況流量阻流(傳感)元件和變送器可以通用,可自由互換,節省備品備件費用可選智能型,帶HART通訊,進行遠程組態。

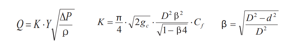
Q:體積流量
K:無量綱常數,因流量計不同而不同
Y:氣體壓縮系數,對非壓縮流體Y=1
gc:重力加速度ρ:流體密度
D:管道內徑K:無量綱常數,因流量計 不同而不同
d:錐體外徑ΔP=P1-P2,一次阻流件上下游之間的壓力差
β:直徑比,無量綱常數Cf:標定常數系數,與文丘里公式相同。
四、主要優勢1、量程比寬V錐流量計的量程較其它類型的差壓流量計大得多,正常情況下為10:1,若需要可以加大。在雷諾數高于 8000 時,輸出信號為線性,若低于 8000 也可測量,但需根據流體狀況對輸出信號根據曲線進行修正。
2、 直管段要求低由于V 錐流量計可均勻流體分布曲線,因此同其它類型的差壓流量計相比,對上、下游直管段的要求小,建議安裝時在上游留 0-3D 的直管段,在下游留 0-1D 直管段,當用戶的管道尺寸大、管道價格高或直管段不夠的情況下,環錐流量計將是合適的選擇。
3、壓力損失低由于沒有突出的檔板,因此環錐流量計的壓力損失比孔板低。另外由于信號穩定,所以同其它差壓式儀表相比,環錐流量計的滿量程差壓值低,滿量程流量的差壓值可為 4~5Kpa 或小,這也使環錐流量計的壓力損失可以限度地減小。
4、無滯留死區由于錐體的這種“吹掃式”設計不存在死區,因此在錐體上不會堆積流體的碎片、粘渣或雜質,這種結構比較適合測量類似渣油、高爐煤氣、焦爐煤氣等臟污介質。
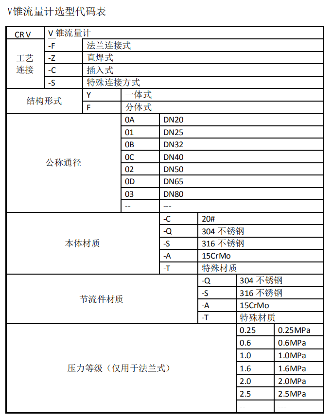
五、選型表
例:CR V-F Y 04 -C -Q 1.6 : V錐流量計,一體式法蘭連接,公稱通徑為DN100,本體材質為20#,節流件材質為304,壓力等級 1.6MPa。

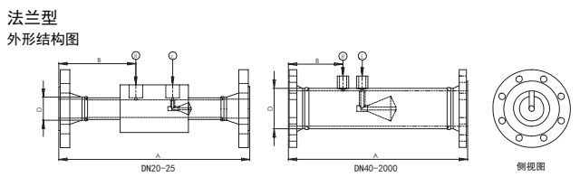
六、結構尺寸